
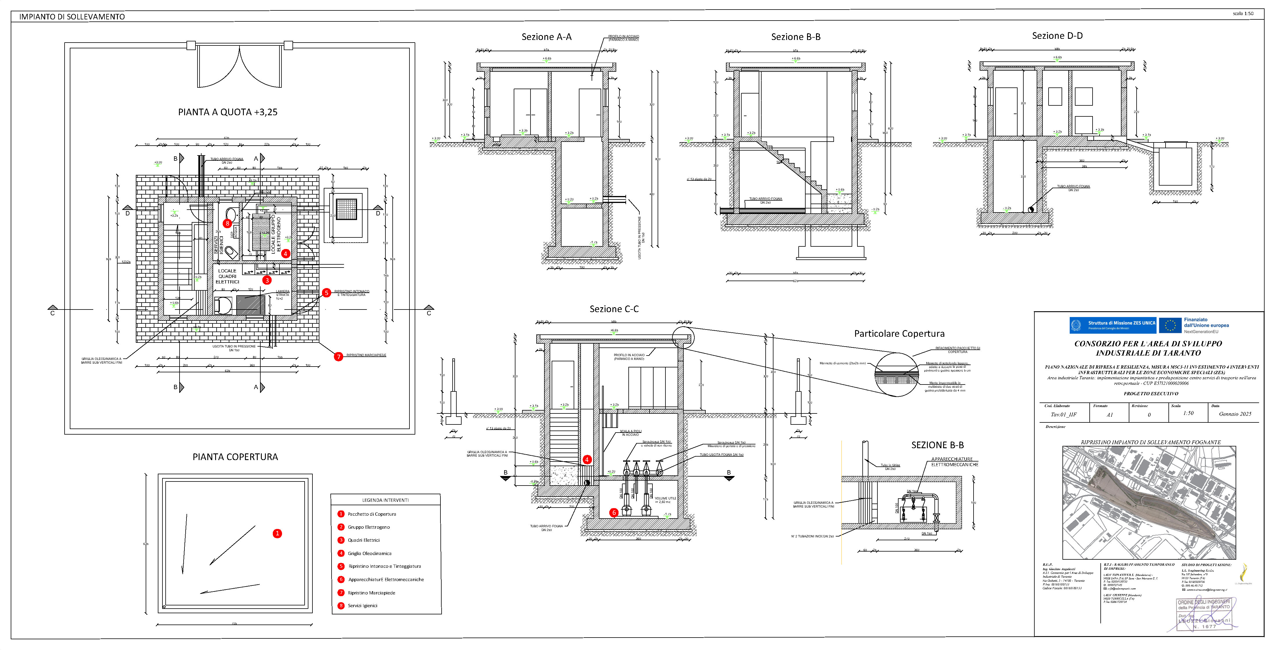
Il progetto prevede, partendo da un’area parzialmente infrastrutturata posizionata nell’area retroportuale del Molo Polisettoriale, la realizzazione delle seguenti strutture: allestimento area parcheggio; impianto fotovoltaico e sistema di accumulo; barriera stradale New Jersey; completamento dell’infrastruttura di fogna nera; realizzazione di un canale per la raccolta e convoglio delle acque meteoriche con installazione di vasca trattamento acque; efficientamento energetico; realizzazione di rete per la fibra ottica; rifacimento della pavimentazione stradale e della segnaletica; colonnine di ricarica veicoli elettrici; centro servizi comprendente bar, servizi igienici e spogliatoi; sistemazione esterna dell'area.