
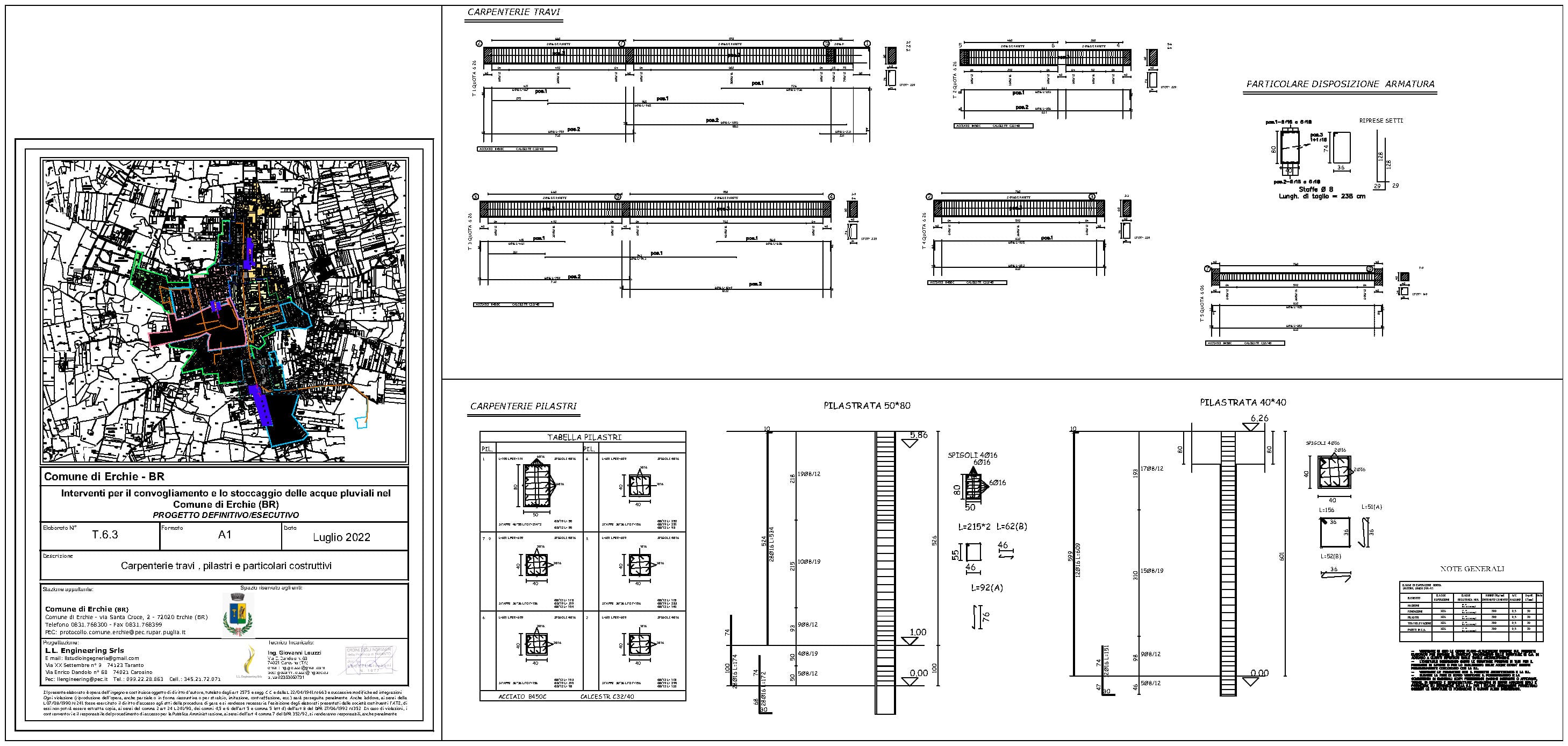
Progetto definitivo/esecutivo. Gli interventi consistono nella realizzazione di n. 4 nuovi tronchi fognanti, in estensione alla rete esistente, e nella realizzazione della vasca di accumulo e stoccaggio dell'acqua piovana da realizzarsi in adiacenza con la vasca di trattamento esistente.