
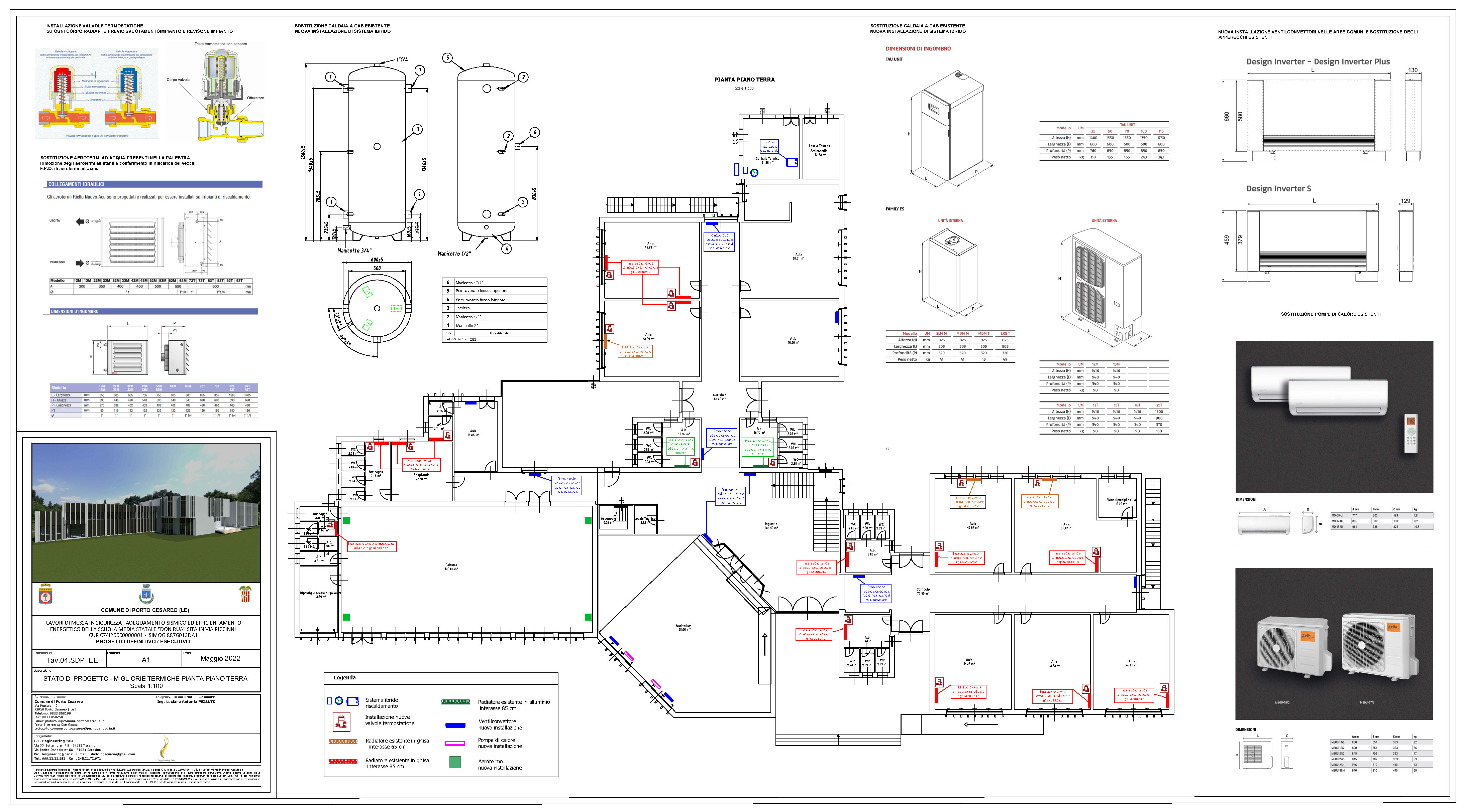
Progettazione definitiva/esecutiva. I principi di progettazione assunti e le soluzioni tecniche adottate mirano a far fronte prioritariamente alle esigenze di messa in sicurezza e riqualificazione dell'immobile ad uso scolastico e al superamento delle barriere architettoniche, rendendo fruibili anche gli spazi esterni.